Foto leveres af Google Street View og kan være upræcist:
Kontorfællesskab til leje, Århus C,
, 8000 Århus C- Kontorfællesskab til leje
- 3.100 kr pr plads
![Kontorfællesskab til leje, Århus C, <span class="blurred street" onclick="ProcessAdRequest(140255)"><span class="hint">Se vej-navn</span>[xxxxxxxxxx]</span>](/LPUploadImages/Cache/995351af-65df-4724-a103-97a4eff3fe28_134.webp?t=638911271332303232)
- Kontorfællesskab til leje
- 3.100 kr pr plads
FÅ MERE INFO OM LOKALET
Du linkes til en anden portal, som evt. kan kræve betaling eller oprettelse
Kontorfællesskab til leje, Århus C,
Fakta
- 140255
- Kontorfællesskab
- 3.100 kr.
- 1 - 2
- Ja
- 32
FÅ MERE INFO OM LOKALET
Du linkes til en anden portal, som evt. kan kræve betaling eller oprettelse
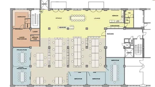
Kontorfællesskab. Pladser udlejes i lækkert åbent, kreativt miljø.
Mangler du/I god plads i et kreativt arbejdsmiljø?
Lej plads i vores lyse, lækre kontorlandskab, og bliv en del af et godt kreativt fællesskab med en afslappet og uformel kultur, god kaffe, fredagsbar og muligheden for at deltage i Aarhus bedste frokostordning, i vores tilknyttede frokost-restaurant!
Vi sidder i dag et mix af industrielle- og digitale designere, grafikere, e-commerce og webshop udviklere, fordelt på 5 virksomheder, og vi har plads til 2 nye arbejdsvenner – enkeltvis eller som flere samlede lejere.
Kontormiljøet er åbent indrettet i et stort og roligt lokale på 3.sal, med højt til loftet, store vinduer og altaner, og som lejer har du fri adgang til 4 gode mødelokaler og Muteboxe, samt flere områder til afslapning og uformelle møder, fælles spiseområde, køkken, toiletter samt Aarhus nyeste, svævende, baggårdshave.
Har du brug for at svine lidt med maling, lim, træ og pap, så forefindes der også værkstedsfaciliteter til dette.
Med i lejen følger desuden: bredbånd, rengøring, alarmsystem og administration af et professionelt og præsentabelt arbejdsmiljø.
Priser fra 3.100,- pr plads.
Lejemålets centrale placering midt i Aarhus, giver let adgang til midtbyens muligheder, så som caféer, restauranter, indkøb, parkeringspladser, samt offentlig transport m.v.
Lav en aftale om at komme forbi for at se og mærke om det er noget for dig eller jer…
Lej plads i vores lyse, lækre kontorlandskab, og bliv en del af et godt kreativt fællesskab med en afslappet og uformel kultur, god kaffe, fredagsbar og muligheden for at deltage i Aarhus bedste frokostordning, i vores tilknyttede frokost-restaurant!
Vi sidder i dag et mix af industrielle- og digitale designere, grafikere, e-commerce og webshop udviklere, fordelt på 5 virksomheder, og vi har plads til 2 nye arbejdsvenner – enkeltvis eller som flere samlede lejere.
Kontormiljøet er åbent indrettet i et stort og roligt lokale på 3.sal, med højt til loftet, store vinduer og altaner, og som lejer har du fri adgang til 4 gode mødelokaler og Muteboxe, samt flere områder til afslapning og uformelle møder, fælles spiseområde, køkken, toiletter samt Aarhus nyeste, svævende, baggårdshave.
Har du brug for at svine lidt med maling, lim, træ og pap, så forefindes der også værkstedsfaciliteter til dette.
Med i lejen følger desuden: bredbånd, rengøring, alarmsystem og administration af et professionelt og præsentabelt arbejdsmiljø.
Priser fra 3.100,- pr plads.
Lejemålets centrale placering midt i Aarhus, giver let adgang til midtbyens muligheder, så som caféer, restauranter, indkøb, parkeringspladser, samt offentlig transport m.v.
Lav en aftale om at komme forbi for at se og mærke om det er noget for dig eller jer…
Services:
Bredbånd, Catering, Eget firmaskilt ved hoveddør, Kantine, Kopimaskine, Køkken/frokoststue, Madordning, Møblering, Parkeringspladser, Printer, Rengøring
Information og data
Dette erhvervslokale ligger på Vesterbro Torv i Århus C. Århus C har postnummeret 8000, og ligger i kommunen Aarhus, som ligger i Århus. Lokalet er i alt 20 m2.