Foto leveres af Google Street View og kan være upræcist:
Kontor til leje, Århus C, Skovvejen
Skovvejen, 8000 Århus C- Kontor til leje
- 1.165 m2
Skovvejen, 8000 Århus C
- Kontor til leje
- 1.165 m2
Kontakt udlejeren nu
Du linkes til en anden portal, som evt. kan kræve betaling eller oprettelse
Kontor til leje, Århus C, Skovvejen
Fakta
- 257552
- Kontor
- 1.165 m2
- Ikke angivet
- 1.274 kr.
KONTAKT UDLEJEREN NU
Du linkes til en anden portal, som evt. kan kræve betaling eller oprettelse
Den smukke historiske Østbanegård til leje
I den charmerende bevaringsværdige stationsbygning Østbanegård fra 1877 udbyder vi nu denne flotte domicilejendom til udlejning.
Her er en unik mulighed for at placere sig centralt mellem det gamle historiske Aarhus og det nye pulserende byliv omkring Aarhus Lystbådehavn, den nye havnefront og Aarhus-Ø. Ejendommen entreres fra Skovvejen igennem stort og indbydende indgangsparti. Her træder man direkte ind i et stor højloftet rum, som oprindeligt var stationsbygningens ventesal. Smukke oprindelige detaljer med det originale stengulv, er med til at give rummet en helt særlig og historisk atmosfære.
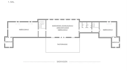
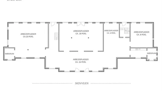
Stueetagen byder ligeledes på flere større og mindre kontorer og mødelokaler samt udgang til togperronen mod øst. På 1. salen finder man centralt et stort åbent rum og herudover 2 gode mødelokaler og toiletfaciliteter. Fra 1. salen er der ligeledes udgang til en stor tagterrasse. Bjælkerne i loftet, buet loft og de runde gavlvinduer er med til at bidrager til ejendommens historiske og charmerende udtryk. Kælderen er istandsat i 2020 og fungere i dag som kantine og personaleindgang. Her finder man gode toiletfaciliteter, garderobe, stor kantine, anretter-køkken og flere disponible rum med gode anvendelsesmuligheder. I dag fungerer ejendommen som kontordomicil, men anvendelsesmulighederne er mange – herunder restaurant, butik m.v. Der er mulighed for at leje af 20 parkeringspladser direkte ved ejendommen samt yderligere 45 parkeringspladser kun 100 meter fra ejendommen. Østbanegården blev opført i 1877 som hovedbanegård for Aarhus-Ryomgård-banen. Ejendommen er tegnet af N.P.C Holsøe og opført i røde mursten. I 1904 blev stationen udvidet, hvor hallen blev gjort dybere. Bygningen havde mange funktioner. Den skulle fungere som ventesal, billetsalg, kiosk, og stationsforstanderen boede i den øverste etage. I 1984 stod bygningen overfor nedrivning hvilket blev forhindret af stor folkelig modstand. En selvejende institution købte bygningen for et symbolsk beløb og satte den i stand med stor respekt for dens arkitektoniske og kulturhistoriske værdier. Der blev fundet nye lejere, som kunne udnytte de fine historiske rammer. Ejendommen er særdeles attraktivt beliggende i det centrale Aarhus. Der er rig mulighed for brug af midtbyens mange faciliteter inden for gåafstand og ikke mindst Aarhus Ø og det populære Trøjborg, hvor der er skønne omgivelser, som skov, vand og indkøbsmuligheder. Ejendommen er beliggende lige i skellet mellem den gamle og nye bydel, med facade til Skovvejen, som binder Kystvejen og Dronning Margrethes Vej sammen og bagside mod den nye havnefront og det spirende nye Aarhus Ø. På denne adresse er synligheden stor grundet trafiktætheden til og fra centrum.
Her er en unik mulighed for at placere sig centralt mellem det gamle historiske Aarhus og det nye pulserende byliv omkring Aarhus Lystbådehavn, den nye havnefront og Aarhus-Ø. Ejendommen entreres fra Skovvejen igennem stort og indbydende indgangsparti. Her træder man direkte ind i et stor højloftet rum, som oprindeligt var stationsbygningens ventesal. Smukke oprindelige detaljer med det originale stengulv, er med til at give rummet en helt særlig og historisk atmosfære.
Stueetagen byder ligeledes på flere større og mindre kontorer og mødelokaler samt udgang til togperronen mod øst. På 1. salen finder man centralt et stort åbent rum og herudover 2 gode mødelokaler og toiletfaciliteter. Fra 1. salen er der ligeledes udgang til en stor tagterrasse. Bjælkerne i loftet, buet loft og de runde gavlvinduer er med til at bidrager til ejendommens historiske og charmerende udtryk. Kælderen er istandsat i 2020 og fungere i dag som kantine og personaleindgang. Her finder man gode toiletfaciliteter, garderobe, stor kantine, anretter-køkken og flere disponible rum med gode anvendelsesmuligheder. I dag fungerer ejendommen som kontordomicil, men anvendelsesmulighederne er mange – herunder restaurant, butik m.v. Der er mulighed for at leje af 20 parkeringspladser direkte ved ejendommen samt yderligere 45 parkeringspladser kun 100 meter fra ejendommen. Østbanegården blev opført i 1877 som hovedbanegård for Aarhus-Ryomgård-banen. Ejendommen er tegnet af N.P.C Holsøe og opført i røde mursten. I 1904 blev stationen udvidet, hvor hallen blev gjort dybere. Bygningen havde mange funktioner. Den skulle fungere som ventesal, billetsalg, kiosk, og stationsforstanderen boede i den øverste etage. I 1984 stod bygningen overfor nedrivning hvilket blev forhindret af stor folkelig modstand. En selvejende institution købte bygningen for et symbolsk beløb og satte den i stand med stor respekt for dens arkitektoniske og kulturhistoriske værdier. Der blev fundet nye lejere, som kunne udnytte de fine historiske rammer. Ejendommen er særdeles attraktivt beliggende i det centrale Aarhus. Der er rig mulighed for brug af midtbyens mange faciliteter inden for gåafstand og ikke mindst Aarhus Ø og det populære Trøjborg, hvor der er skønne omgivelser, som skov, vand og indkøbsmuligheder. Ejendommen er beliggende lige i skellet mellem den gamle og nye bydel, med facade til Skovvejen, som binder Kystvejen og Dronning Margrethes Vej sammen og bagside mod den nye havnefront og det spirende nye Aarhus Ø. På denne adresse er synligheden stor grundet trafiktætheden til og fra centrum.
Information og data
Dette erhvervslokale ligger på Skovvejen i Århus C. Århus C har postnummeret 8000, og ligger i kommunen Aarhus, som ligger i Århus. Lokalet er i alt 1165 m2.
Dette er et søgeresultat. Klik dig videre til det eksterne website for at få mere info om lokalet.