Foto leveres af Google Street View og kan være upræcist:
    
Lager til leje, Århus V, Paludan Müllers Vej 82-84
Paludan Müllers Vej 82-84, 8210 Århus V- Lager til leje
 
            
                Paludan Müllers Vej 82-84, 8210 Århus V
                
            - Lager til leje
            Kontakt udlejeren nu
            Du linkes til en anden portal, som evt. kan kræve betaling eller oprettelse
Lager til leje, Århus V, Paludan Müllers Vej 82-84
Fakta
- 296306
- Lager
- 5 - -1 m2
- Ikke angivet
- 575 kr.
                    KONTAKT UDLEJEREN NU
                    
            
        Du linkes til en anden portal, som evt. kan kræve betaling eller oprettelse
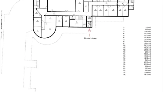
                Lager / Depotrum med adgang fra elevator i Århus N
            Området
Ejendommen har en yderst attraktiv beliggenhed midt imellem Aarhus C og Skejby. Lejere vil nyde godt af stor eksponering mod hovedvejene Paludan-Müllers Vej og ydre Ringvej hvor der dagligt passerer mere end 30.000 biler, hvilket sikrer synlighed og tilgængelighed. Desuden er ejendommen i nærheden af IT-byen Katrinebjerg, som huser en række førende IT-virksomheder samt Journalisthøjskolen og Aarhus Universitet. Skejby Business Park, det største erhvervsområde uden for Aarhus C, ligger også inden for kort afstand. Motorvej Aarhus Syd og E45 er blot 6 min. i bil fra ejendommen.
Ejendommens placering sikrer hurtig adgang til det overordnede vejnet i Aarhus, og der er gode busforbindelser med bus 2A og 6A, hvoraf sidstnævnte har stoppested lige ved siden af ejendommen og afgange hvert tiende minut.
Ejendommen
Ejendommen er opført i 1999 som domicil til den danske fabrikant af vindmøller ”Vestas Wind Systems”. I dag huser ejendommen bl.a. Bygningsstyrelsen, Laros Ejendomsadministration og Min Bolig Handel.
Ejendommen er med sin langstrakte facade mod Ringgaden, udført i gule mursten og mørk hårdttræsbeklædning, en markant og kendt ejendom i Aarhus. Ejendommen er udformet med to sidefløje der udspringer fra et cirkulært indgangsparti og har fladt tag med tagudhæng udført i sort aluminium. Hele ejendommen fremstår udvendigt i nydelig og vel vedligeholdt stand.
Lejemålet
Lager indrettet i kælder med adgang fra elevator i grundplan. Lagerlejemål fremtræder i forskellige størrelser & kan fremvises efter aftale.
            
        
            Ejendommen har en yderst attraktiv beliggenhed midt imellem Aarhus C og Skejby. Lejere vil nyde godt af stor eksponering mod hovedvejene Paludan-Müllers Vej og ydre Ringvej hvor der dagligt passerer mere end 30.000 biler, hvilket sikrer synlighed og tilgængelighed. Desuden er ejendommen i nærheden af IT-byen Katrinebjerg, som huser en række førende IT-virksomheder samt Journalisthøjskolen og Aarhus Universitet. Skejby Business Park, det største erhvervsområde uden for Aarhus C, ligger også inden for kort afstand. Motorvej Aarhus Syd og E45 er blot 6 min. i bil fra ejendommen.
Ejendommens placering sikrer hurtig adgang til det overordnede vejnet i Aarhus, og der er gode busforbindelser med bus 2A og 6A, hvoraf sidstnævnte har stoppested lige ved siden af ejendommen og afgange hvert tiende minut.
Ejendommen
Ejendommen er opført i 1999 som domicil til den danske fabrikant af vindmøller ”Vestas Wind Systems”. I dag huser ejendommen bl.a. Bygningsstyrelsen, Laros Ejendomsadministration og Min Bolig Handel.
Ejendommen er med sin langstrakte facade mod Ringgaden, udført i gule mursten og mørk hårdttræsbeklædning, en markant og kendt ejendom i Aarhus. Ejendommen er udformet med to sidefløje der udspringer fra et cirkulært indgangsparti og har fladt tag med tagudhæng udført i sort aluminium. Hele ejendommen fremstår udvendigt i nydelig og vel vedligeholdt stand.
Lejemålet
Lager indrettet i kælder med adgang fra elevator i grundplan. Lagerlejemål fremtræder i forskellige størrelser & kan fremvises efter aftale.
Information og data
Dette erhvervslokale ligger på Paludan Müllers Vej i Århus V. Århus V har postnummeret 8210, og ligger i kommunen Aarhus, som ligger i Århus.
 
                    
                 
                    
                 
                    
                 
                    
                 
                    
                 
                    
                